東洋不動産の賃貸オフィスサイト >
東京都中央区京橋
> 斎藤ビルヂング
アイコン説明
|
新耐震基準のオフィス |
天井高3m以上のオフィス |
駅徒歩5分圏内のオフィス |
|
300坪以上のオフィス |
省エネ・環境配慮のオフィス |
築浅のビル |
|
高層ビル |
賃料20,000円以下ビル |
ビル一棟貸し |
|
BCP対策(非常用発電あり) |
1F限定ビル |
大規模ビル |
斎藤ビルヂング
エリア区分 : 八重洲・京橋・日本橋エリア (中央区) 情報更新日 : 2025年10月27日外観写真・アクセスマップ・建物情報
※賃料、共益費等課税対象となる金額には別途消費税が加算されます。
※万一、成約済みの場合はご了承ください。
※内容が現状と異なる場合には、現況を優先いたします。
※成約時には、法令に定める基準に従い仲介手数料を申し受けます。
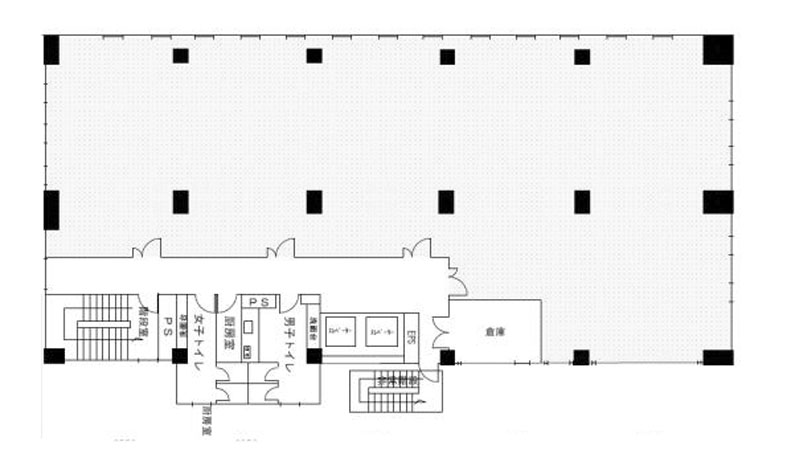
斎藤ビルヂングの建物情報
| 物件名 | 斎藤ビルヂング(物件番号:009629) |
|---|---|
| 空室 | 空室 3 区画 空室情報はこちら▼ |
| 所在地 | 東京都中央区京橋3丁目14-6 |
| 交通 |
JR京葉線 / 八丁堀駅 徒歩約5分 都営浅草線 / 宝町駅 徒歩約1分 東京メトロ銀座線 / 京橋駅 徒歩約3分 |
| 規模 | 地上9階 / 地下1階 |
| 構造 | SRC造 |
| 竣工年月 | 1983年9月 |
| 延床面積 | 1,481坪 / 4,896㎡ |
| 基準階面積 | 147坪 / 486㎡ |
| 天井高 | 2,650㎜ |
| 床荷重 |
| 契約形態 | 普通借家 |
|---|---|
| 更新料 | なし |
| 契約期間 | |
| 最終更新 | 2025年10月10日 |
|
空調
|
個別 |
|---|---|
| 光ケーブル | あり |
| 警備 | 有人+機械警備 |
| エレベーター | あり(2基) |
斎藤ビルヂング 現在は 3 区画 空きがございます
| 階数 | 面積 | 月額賃料(総額) (坪単価) |
共益費 (坪単価) |
入居時期 | 保証金 | 天井高 OAフロア |
償却 | お気に入り お問い合わせ |
|
|---|---|---|---|---|---|---|---|---|---|
| 3 | 74.95坪
(247.76㎡) |
1,236,675円
(16,500円) |
329,780円
(4,400円) |
2025年11月1日 | 10ヵ月 | 2,650㎜
あり |
なし | 詳細 |
|
| 4 | 49.82坪
(164.69㎡) |
822,030円
(16,500円) |
219,208円
(4,400円) |
2025年11月1日 | 10ヵ月 | 2,650㎜
あり |
なし | 詳細 |
|
| 8 | 45.64坪
(150.87㎡) |
753,060円
(16,500円) |
200,816円
(4,400円) |
相談 | 10ヵ月 | 2,600㎜
あり |
なし | 詳細 |
|
おすすめエリアからオフィスを探す




お気に入り
閲覧履歴





