ヒューリック木場ビル の賃貸オフィス | 港区、千代⽥区、中央区など都⼼の賃貸オフィスをお探しなら東洋不動産

東洋不動産の賃貸オフィスサイト >  東京都江東区東陽   > ヒューリック木場ビル
ヒューリック木場ビル
エリア区分 : 東陽町・木場・門前仲町エリア (江東区) 情報更新日 : 2026年3月4日

外観写真・アクセスマップ・建物情報

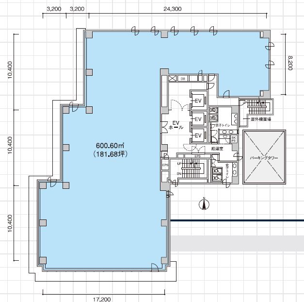
基準階平面図

※賃料、共益費等課税対象となる金額には別途消費税が加算されます。

※万一、成約済みの場合はご了承ください。

※内容が現状と異なる場合には、現況を優先いたします。

※成約時には、法令に定める基準に従い仲介手数料を申し受けます。

ヒューリック木場ビルの建物情報
物件名 ヒューリック木場ビル(物件番号:009386)
空室 空室 0 区画 空室情報はこちら▼
所在地 東京都江東区東陽3丁目7-13
交通 東京メトロ東西線 / 木場駅 徒歩約2分
東京メトロ東西線 / 東陽町駅 徒歩約9分
東京メトロ東西線 / 門前仲町駅 徒歩約15分
都営大江戸線 / 門前仲町駅 徒歩約15分
規模 地上10階
構造 SRC造
竣工年月 1992年2月
延床面積 2,260坪 / 7,471㎡
基準階面積 182坪 / 601㎡
天井高 2,650㎜
床荷重
契約形態
更新料 なし
契約期間 2年
最終更新 2026年3月4日
空調
 
個別
光ケーブル あり
警備 機械警備
エレベーター あり(3基(13人乗))

ヒューリック木場ビル 現在は 0 区画 空きがございます

階数 面積 月額賃料(総額)
(坪単価)
共益費
(坪単価)
入居時期 保証金 天井高
OAフロア
償却   お気に入り
お問い合わせ
現在、空室情報はありません。

ヒューリック木場ビルを見た人はこんな物件も見ています

最近チェックした物件

チェックした 0 棟(0区画)を
まとめてお気に⼊り まとめてお問い合わせ