東洋不動産の賃貸オフィスサイト >
東京都江東区有明
> 有明セントラルタワー
アイコン説明
|
新耐震基準のオフィス |
天井高3m以上のオフィス |
駅徒歩5分圏内のオフィス |
|
300坪以上のオフィス |
省エネ・環境配慮のオフィス |
築浅のビル |
|
高層ビル |
賃料20,000円以下ビル |
ビル一棟貸し |
|
BCP対策(非常用発電あり) |
1F限定ビル |
大規模ビル |
有明セントラルタワー
エリア区分 : 豊洲・有明・台場エリア (江東区) 情報更新日 : 2026年4月27日外観写真・アクセスマップ・建物情報
※賃料、共益費等課税対象となる金額には別途消費税が加算されます。
※万一、成約済みの場合はご了承ください。
※内容が現状と異なる場合には、現況を優先いたします。
※成約時には、法令に定める基準に従い仲介手数料を申し受けます。
有明セントラルタワーの建物情報
| 物件名 | 有明セントラルタワー(物件番号:009284) |
|---|---|
| 空室 | 空室 6 区画 空室情報はこちら▼ |
| 所在地 | 東京都江東区有明3丁目7-18 |
| 交通 |
りんかい線 / 国際展示場駅 徒歩約5分 ゆりかもめ / 有明駅 徒歩約4分 ゆりかもめ / 国際展示場正門駅 徒歩約4分 |
| 規模 | 地上20階 / 地下1階 |
| 構造 | S造 |
| 竣工年月 | 2011年1月 |
| 延床面積 | 21,563坪 / 71,282㎡ |
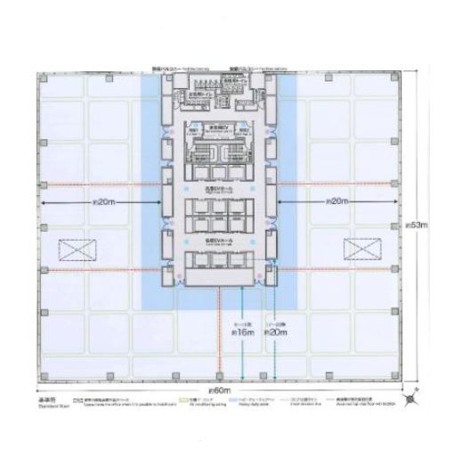
| 基準階面積 | 750坪 / 2,479㎡ |
| 天井高 | 2,800㎜ |
| 床荷重 | 500kg/㎡ |
| 契約形態 | 定期借家 |
|---|---|
| 更新料 | なし |
| 契約期間 | |
| 最終更新 | 2026年4月27日 |
|
空調
|
セントラル |
|---|---|
| 光ケーブル | あり |
| 警備 | 機械警備 |
| エレベーター | あり(17基) |
有明セントラルタワー 現在は 6 区画 空きがございます
| 階数 | 面積 | 月額賃料(総額) (坪単価) |
共益費 (坪単価) |
入居時期 | 保証金 | 天井高 OAフロア |
償却 | お気に入り お問い合わせ |
|
|---|---|---|---|---|---|---|---|---|---|
| 6 | 329.98坪
(1,090.84㎡) |
相談
|
賃料に含む | 即日 | 12ヵ月 | 2,800㎜
あり |
詳細 |
|
|
| 7 | 210.49坪
(695.83㎡) |
相談
|
賃料に含む | 即日 | 12ヵ月 | 2,800㎜
あり |
なし | 詳細 |
|
| 8 | 375.47坪
(1,241.22㎡) |
相談
|
賃料に含む | 即日 | 12ヵ月 | 2,800㎜
あり |
詳細 |
|
|
| 10 | 119.86坪
(396.23㎡) |
相談
|
賃料に含む | 即日 | 12ヵ月 | 2,800㎜
あり |
なし | 詳細 |
|
| 15 | 750.94坪
(2,482.44㎡) |
相談
|
賃料に含む | 即日 | 12ヵ月 | 2,800㎜
あり |
なし | 詳細 |
|
| 18 | 210.00坪
(694.21㎡) |
相談
|
賃料に含む | 即日 | 12ヵ月 | 2,800㎜
あり |
相談 | 詳細 |
|
おすすめエリアからオフィスを探す




お気に入り
閲覧履歴









