東洋不動産の賃貸オフィスサイト >
東京都渋谷区東
> A-PLACE恵比寿東
アイコン説明
|
新耐震基準のオフィス |
天井高3m以上のオフィス |
駅徒歩5分圏内のオフィス |
|
300坪以上のオフィス |
省エネ・環境配慮のオフィス |
築浅のビル |
|
高層ビル |
賃料20,000円以下ビル |
ビル一棟貸し |
|
BCP対策(非常用発電あり) |
1F限定ビル |
大規模ビル |
A-PLACE恵比寿東
エリア区分 : 恵比寿・広尾エリア (渋谷区) 情報更新日 : 2026年3月2日外観写真・アクセスマップ・建物情報
※賃料、共益費等課税対象となる金額には別途消費税が加算されます。
※万一、成約済みの場合はご了承ください。
※内容が現状と異なる場合には、現況を優先いたします。
※成約時には、法令に定める基準に従い仲介手数料を申し受けます。
A-PLACE恵比寿東の建物情報
| 物件名 | A-PLACE恵比寿東(物件番号:009164) |
|---|---|
| 空室 | 空室 1 区画 空室情報はこちら▼ |
| 所在地 | 東京都渋谷区東3丁目13-11 |
| 交通 |
東京メトロ日比谷線 / 恵比寿駅 徒歩約6分 JR山手線 / 恵比寿駅 徒歩約6分 JR埼京線 / 恵比寿駅 徒歩約6分 |
| 規模 | 地上10階 / 地下2階 |
| 構造 | SRC造 |
| 竣工年月 | 1992年1月 |
| 延床面積 | 1,610坪 / 5,321㎡ |
| 基準階面積 | 193坪 / 639㎡ |
| 天井高 | 2,500㎜ |
| 床荷重 | 300kg/㎡ |
| 契約形態 | |
|---|---|
| 更新料 | |
| 契約期間 | |
| 最終更新 | 2025年10月3日 |
|
空調
|
個別 |
|---|---|
| 光ケーブル | あり |
| 警備 | 機械警備 |
| エレベーター | あり |
A-PLACE恵比寿東 現在は 1 区画 空きがございます
| 階数 | 面積 | 月額賃料(総額) (坪単価) |
共益費 (坪単価) |
入居時期 | 保証金 | 天井高 OAフロア |
償却 | お気に入り お問い合わせ |
|
|---|---|---|---|---|---|---|---|---|---|
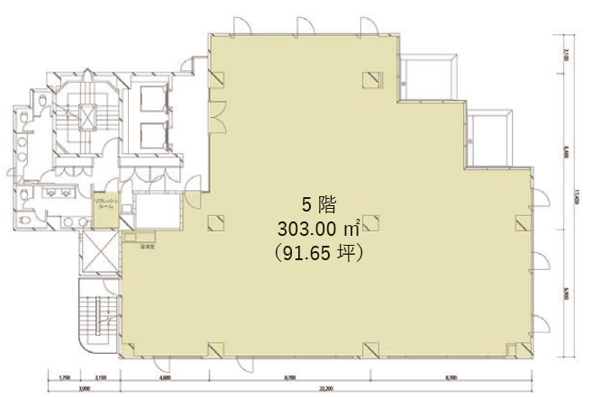
| 5 | 91.65坪
(302.97㎡) |
相談
|
(なし) | 2026年3月16日予定 | 12ヵ月 | 2,500㎜
あり |
なし | 詳細 |
|
おすすめエリアからオフィスを探す




お気に入り
閲覧履歴



