東洋不動産の賃貸オフィスサイト >
東京都中央区築地
> ACN築地テラスビル
アイコン説明
|
新耐震基準のオフィス |
天井高3m以上のオフィス |
駅徒歩5分圏内のオフィス |
|
300坪以上のオフィス |
省エネ・環境配慮のオフィス |
築浅のビル |
|
高層ビル |
賃料20,000円以下ビル |
ビル一棟貸し |
|
BCP対策(非常用発電あり) |
1F限定ビル |
大規模ビル |
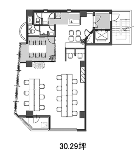
ACN築地テラスビル
エリア区分 : 築地・新富町エリア (中央区) 情報更新日 : 2025年11月14日外観写真・アクセスマップ・建物情報
※賃料、共益費等課税対象となる金額には別途消費税が加算されます。
※万一、成約済みの場合はご了承ください。
※内容が現状と異なる場合には、現況を優先いたします。
※成約時には、法令に定める基準に従い仲介手数料を申し受けます。
おすすめエリアからオフィスを探す




お気に入り
閲覧履歴


