東洋不動産の賃貸オフィスサイト >
東京都品川区上大崎
> PMO目黒
アイコン説明
|
新耐震基準のオフィス |
天井高3m以上のオフィス |
駅徒歩5分圏内のオフィス |
|
300坪以上のオフィス |
省エネ・環境配慮のオフィス |
築浅のビル |
|
高層ビル |
賃料20,000円以下ビル |
ビル一棟貸し |
|
BCP対策(非常用発電あり) |
1F限定ビル |
大規模ビル |
PMO目黒
エリア区分 : 大崎・五反田・目黒エリア (品川区) 情報更新日 : 2026年1月26日外観写真・アクセスマップ・建物情報
※賃料、共益費等課税対象となる金額には別途消費税が加算されます。
※万一、成約済みの場合はご了承ください。
※内容が現状と異なる場合には、現況を優先いたします。
※成約時には、法令に定める基準に従い仲介手数料を申し受けます。
PMO目黒 現在は 1 区画 空きがございます
| 階数 | 面積 | 月額賃料(総額) (坪単価) |
共益費 (坪単価) |
入居時期 | 保証金 | 天井高 OAフロア |
償却 | お気に入り お問い合わせ |
|
|---|---|---|---|---|---|---|---|---|---|
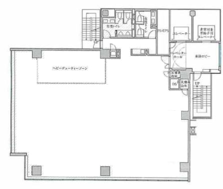
| 8 | 95.67坪
(316.26㎡) |
相談
|
相談 | 即日 | 相談 | 2,800㎜
|
詳細 |
|
おすすめエリアからオフィスを探す




お気に入り
閲覧履歴




