東洋不動産の賃貸オフィスサイト >
東京都渋谷区神宮前
> 渋原XROSS
アイコン説明
|
新耐震基準のオフィス |
天井高3m以上のオフィス |
駅徒歩5分圏内のオフィス |
|
300坪以上のオフィス |
省エネ・環境配慮のオフィス |
築浅のビル |
|
高層ビル |
賃料20,000円以下ビル |
ビル一棟貸し |
|
BCP対策(非常用発電あり) |
1F限定ビル |
大規模ビル |
渋原XROSS
エリア区分 : 都内23区エリア (渋谷区) 情報更新日 : 2026年2月16日外観写真・アクセスマップ・建物情報
※賃料、共益費等課税対象となる金額には別途消費税が加算されます。
※万一、成約済みの場合はご了承ください。
※内容が現状と異なる場合には、現況を優先いたします。
※成約時には、法令に定める基準に従い仲介手数料を申し受けます。
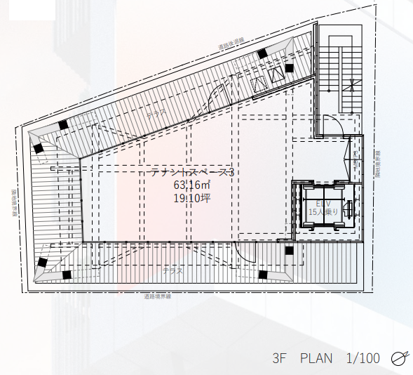
渋原XROSSの建物情報
| 物件名 | 渋原XROSS(物件番号:023982) |
|---|---|
| 空室 | 空室 2 区画 空室情報はこちら▼ |
| 所在地 | 東京都渋谷区神宮前6丁目29-4 |
| 交通 |
東京メトロ千代田線 / 明治神宮前〈原宿〉駅 徒歩約1分 JR山手線 / 原宿駅 徒歩約6分 |
| 規模 | 地上9階 |
| 構造 | S造 |
| 竣工年月 | 2026年1月 |
| 延床面積 | |
| 基準階面積 | 29坪 / 95㎡ |
| 天井高 | 4,450㎜ |
| 床荷重 |
| 契約形態 | 定期借家 |
|---|---|
| 更新料 | 再契約料1ヶ月 |
| 契約期間 | 5年 |
| 最終更新 | 2026年2月26日 |
|
空調
|
|
|---|---|
| 光ケーブル | |
| 警備 | |
| エレベーター | あり(1基) |
おすすめエリアからオフィスを探す




お気に入り
閲覧履歴




