東洋不動産の賃貸オフィスサイト >
東京都渋谷区東
> いちご渋谷イーストビル
アイコン説明
|
新耐震基準のオフィス |
天井高3m以上のオフィス |
駅徒歩5分圏内のオフィス |
|
300坪以上のオフィス |
省エネ・環境配慮のオフィス |
築浅のビル |
|
高層ビル |
賃料20,000円以下ビル |
ビル一棟貸し |
|
BCP対策(非常用発電あり) |
1F限定ビル |
大規模ビル |
いちご渋谷イーストビル
エリア区分 : 恵比寿・広尾エリア (渋谷区) 情報更新日 : 2026年4月15日外観写真・アクセスマップ・建物情報
※賃料、共益費等課税対象となる金額には別途消費税が加算されます。
※万一、成約済みの場合はご了承ください。
※内容が現状と異なる場合には、現況を優先いたします。
※成約時には、法令に定める基準に従い仲介手数料を申し受けます。
いちご渋谷イーストビルの建物情報
| 物件名 | いちご渋谷イーストビル(物件番号:002282) |
|---|---|
| 空室 | 空室 1 区画 空室情報はこちら▼ |
| 所在地 | 東京都渋谷区東1丁目3-10 |
| 交通 |
JR山手線 / 渋谷駅 徒歩約9分 東京メトロ銀座線 / 渋谷駅 徒歩約9分 東京メトロ千代田線 / 表参道駅 徒歩約14分 |
| 規模 | 地上6階 |
| 構造 | SRC造 |
| 竣工年月 | 1985年10月 |
| 延床面積 | 351坪 / 1,159㎡ |
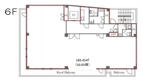
| 基準階面積 | 59坪 / 194㎡ |
| 天井高 | 2,364㎜ |
| 床荷重 |
| 契約形態 | 定期借家 |
|---|---|
| 更新料 | なし |
| 契約期間 | 2年 |
| 最終更新 | 2026年1月28日 |
|
空調
|
個別 |
|---|---|
| 光ケーブル | あり |
| 警備 | 機械警備 |
| エレベーター | あり(1基) |
いちご渋谷イーストビル 現在は 1 区画 空きがございます
| 階数 | 面積 | 月額賃料(総額) (坪単価) |
共益費 (坪単価) |
入居時期 | 保証金 | 天井高 OAフロア |
償却 | お気に入り お問い合わせ |
|
|---|---|---|---|---|---|---|---|---|---|
| 2 | 54.05坪
(178.67㎡) |
相談
|
178,365円
(3,300円) |
即日 | なし | 2,360㎜
あり |
なし | 詳細 |
|
おすすめエリアからオフィスを探す




お気に入り
閲覧履歴



