ACN汐留ビルディング の賃貸オフィス | 港区、千代⽥区、中央区など都⼼の賃貸オフィスをお探しなら東洋不動産

東洋不動産の賃貸オフィスサイト >  東京都港区東新橋   > ACN汐留ビルディング
ACN汐留ビルディング
エリア区分 : 新橋・汐留エリア (港区) 情報更新日 : 2026年3月9日

外観写真・アクセスマップ・建物情報

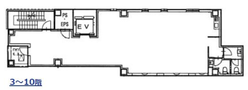
基準階平面図

※賃料、共益費等課税対象となる金額には別途消費税が加算されます。

※万一、成約済みの場合はご了承ください。

※内容が現状と異なる場合には、現況を優先いたします。

※成約時には、法令に定める基準に従い仲介手数料を申し受けます。

ACN汐留ビルディングの建物情報
物件名 ACN汐留ビルディング(物件番号:019608)
空室 空室 1 区画 空室情報はこちら▼
所在地 東京都港区東新橋2丁目5ー6
交通 都営大江戸線 / 汐留駅 徒歩約4分
JR山手線 / 新橋駅 徒歩約5分
東京メトロ銀座線 / 新橋駅 徒歩約5分
JR山手線 / 浜松町駅 徒歩約9分
規模 地上10階
構造 S造
竣工年月 2022年4月
延床面積
基準階面積 33坪 / 109㎡
天井高 2,550㎜
床荷重
契約形態 定期借家
更新料 再契約料1ヶ月
契約期間 3年
最終更新 2026年3月9日
空調
 
個別
光ケーブル
警備
エレベーター あり(1基)

ACN汐留ビルディング 現在は 1 区画 空きがございます

階数 面積 月額賃料(総額)
(坪単価)
共益費
(坪単価)
入居時期 保証金 天井高
OAフロア
償却   お気に入り
お問い合わせ
7 33.25坪
(109.91㎡)
相談
賃料に含む 即日 8ヵ月 2,550㎜
1ヵ月 詳細

ACN汐留ビルディングを見た人はこんな物件も見ています

最近チェックした物件

チェックした 0 棟(0区画)を
まとめてお気に⼊り まとめてお問い合わせ