東洋不動産の賃貸オフィスサイト >
東京都中央区新川
> 白鹿茅場町ビル
アイコン説明
|
新耐震基準のオフィス |
天井高3m以上のオフィス |
駅徒歩5分圏内のオフィス |
|
300坪以上のオフィス |
省エネ・環境配慮のオフィス |
築浅のビル |
|
高層ビル |
賃料20,000円以下ビル |
ビル一棟貸し |
|
BCP対策(非常用発電あり) |
1F限定ビル |
大規模ビル |
白鹿茅場町ビル
エリア区分 : 八丁堀・茅場町・新川エリア (中央区) 情報更新日 : 2026年3月2日外観写真・アクセスマップ・建物情報
※賃料、共益費等課税対象となる金額には別途消費税が加算されます。
※万一、成約済みの場合はご了承ください。
※内容が現状と異なる場合には、現況を優先いたします。
※成約時には、法令に定める基準に従い仲介手数料を申し受けます。
白鹿茅場町ビルの建物情報
| 物件名 | 白鹿茅場町ビル(物件番号:001844) |
|---|---|
| 空室 | 空室 2 区画 空室情報はこちら▼ |
| 所在地 | 東京都中央区新川1丁目17-18 |
| 交通 |
東京メトロ日比谷線 / 茅場町駅 徒歩約5分 東京メトロ日比谷線 / 八丁堀駅 徒歩約8分 東京メトロ東西線 / 茅場町駅 徒歩約5分 JR京葉線 / 八丁堀駅 徒歩約8分 |
| 規模 | 地上9階 / 地下2階 |
| 構造 | SRC造 |
| 竣工年月 | 1993年11月 |
| 延床面積 | 881坪 / 2,913㎡ |
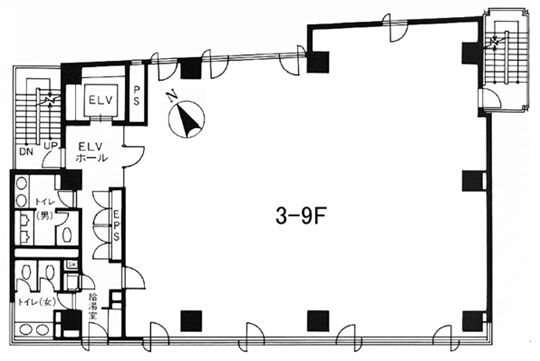
| 基準階面積 | 65坪 / 215㎡ |
| 天井高 | 2,600㎜ |
| 床荷重 | 300kg/㎡ |
| 契約形態 | 普通借家 |
|---|---|
| 更新料 | なし |
| 契約期間 | 2年 |
| 最終更新 | 2026年3月2日 |
|
空調
|
個別 |
|---|---|
| 光ケーブル | |
| 警備 | 機械警備 |
| エレベーター | あり(常用1基) |
おすすめエリアからオフィスを探す




お気に入り
閲覧履歴





