東洋不動産の賃貸オフィスサイト >
東京都新宿区四谷三栄町
> 四谷三栄町スクエア
アイコン説明
|
新耐震基準のオフィス |
天井高3m以上のオフィス |
駅徒歩5分圏内のオフィス |
|
300坪以上のオフィス |
省エネ・環境配慮のオフィス |
築浅のビル |
|
高層ビル |
賃料20,000円以下ビル |
ビル一棟貸し |
|
BCP対策(非常用発電あり) |
1F限定ビル |
大規模ビル |
四谷三栄町スクエア
エリア区分 : 都内23区エリア (新宿区) 情報更新日 : 2026年4月23日外観写真・アクセスマップ・建物情報
※賃料、共益費等課税対象となる金額には別途消費税が加算されます。
※万一、成約済みの場合はご了承ください。
※内容が現状と異なる場合には、現況を優先いたします。
※成約時には、法令に定める基準に従い仲介手数料を申し受けます。
四谷三栄町スクエアの建物情報
| 物件名 | 四谷三栄町スクエア(物件番号:017438) |
|---|---|
| 空室 | 空室 1 区画 空室情報はこちら▼ |
| 所在地 | 東京都新宿区四谷三栄町9-6 |
| 交通 |
東京メトロ丸ノ内線 / 四谷三丁目駅 徒歩約4分 JR中央本線(東京~塩尻) / 四ツ谷駅 徒歩約9分 東京メトロ南北線 / 四ツ谷駅 徒歩約99分 |
| 規模 | 地上6階 |
| 構造 | RC造 |
| 竣工年月 | 1988年2月 |
| 延床面積 | |
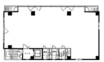
| 基準階面積 | 63坪 / 207㎡ |
| 天井高 | |
| 床荷重 |
| 契約形態 | |
|---|---|
| 更新料 | なし |
| 契約期間 | 2年 |
| 最終更新 | 2026年4月23日 |
|
空調
|
個別 |
|---|---|
| 光ケーブル | あり |
| 警備 | 機械警備 |
| エレベーター | あり(1基9人乗り) |
四谷三栄町スクエア 現在は 1 区画 空きがございます
| 階数 | 面積 | 月額賃料(総額) (坪単価) |
共益費 (坪単価) |
入居時期 | 保証金 | 天井高 OAフロア |
償却 | お気に入り お問い合わせ |
|
|---|---|---|---|---|---|---|---|---|---|
| 3 | 62.62坪
(207.03㎡) |
1,584,286円
(25,300円) |
賃料に含む | 即日 | 6ヵ月 |
|
なし | 詳細 |
|
おすすめエリアからオフィスを探す




お気に入り
閲覧履歴


