東洋不動産の賃貸オフィスサイト >
東京都世田谷区玉川
> 睦ビル二子玉川
アイコン説明
|
新耐震基準のオフィス |
天井高3m以上のオフィス |
駅徒歩5分圏内のオフィス |
|
300坪以上のオフィス |
省エネ・環境配慮のオフィス |
築浅のビル |
|
高層ビル |
賃料20,000円以下ビル |
ビル一棟貸し |
|
BCP対策(非常用発電あり) |
1F限定ビル |
大規模ビル |
睦ビル二子玉川
エリア区分 : 都内23区エリア (世田谷区) 情報更新日 : 2026年4月24日外観写真・アクセスマップ・建物情報
※賃料、共益費等課税対象となる金額には別途消費税が加算されます。
※万一、成約済みの場合はご了承ください。
※内容が現状と異なる場合には、現況を優先いたします。
※成約時には、法令に定める基準に従い仲介手数料を申し受けます。
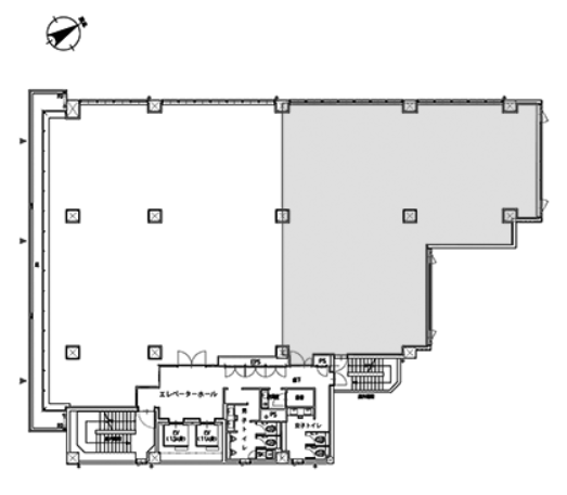
睦ビル二子玉川 現在は 1 区画 空きがございます
| 階数 | 面積 | 月額賃料(総額) (坪単価) |
共益費 (坪単価) |
入居時期 | 保証金 | 天井高 OAフロア |
償却 | お気に入り お問い合わせ |
|
|---|---|---|---|---|---|---|---|---|---|
| 3 | 69.72坪
(230.47㎡) |
相談
|
賃料に含む | 2026年7月2日 | 12ヵ月 | 2,600㎜
あり |
詳細 |
|
おすすめエリアからオフィスを探す




お気に入り
閲覧履歴



