東洋不動産の賃貸オフィスサイト >
東京都文京区関口
> JMFビル江戸川橋01
アイコン説明
|
新耐震基準のオフィス |
天井高3m以上のオフィス |
駅徒歩5分圏内のオフィス |
|
300坪以上のオフィス |
省エネ・環境配慮のオフィス |
築浅のビル |
|
高層ビル |
賃料20,000円以下ビル |
ビル一棟貸し |
|
BCP対策(非常用発電あり) |
1F限定ビル |
大規模ビル |
JMFビル江戸川橋01
エリア区分 : 都内23区エリア (文京区) 情報更新日 : 2025年12月4日外観写真・アクセスマップ・建物情報
※賃料、共益費等課税対象となる金額には別途消費税が加算されます。
※万一、成約済みの場合はご了承ください。
※内容が現状と異なる場合には、現況を優先いたします。
※成約時には、法令に定める基準に従い仲介手数料を申し受けます。
JMFビル江戸川橋01の建物情報
| 物件名 | JMFビル江戸川橋01(物件番号:014804) |
|---|---|
| 空室 | 空室 4 区画 空室情報はこちら▼ |
| 所在地 | 東京都文京区関口1丁目44-10 |
| 交通 |
東京メトロ有楽町線 / 江戸川橋駅 徒歩約3分 東京メトロ東西線 / 神楽坂駅 徒歩約11分 東京さくらトラム(都電荒川線) / 早稲田駅 徒歩約12分 |
| 規模 | 地上9階 |
| 構造 | SRC造 |
| 竣工年月 | 1992年10月 |
| 延床面積 | 1,357坪 / 4,487㎡ |
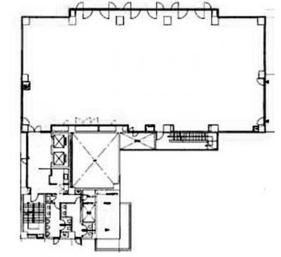
| 基準階面積 | 147坪 / 486㎡ |
| 天井高 | 2,600㎜ |
| 床荷重 | 300kg/㎡ |
| 契約形態 | 定期借家 |
|---|---|
| 更新料 | なし |
| 契約期間 | |
| 最終更新 | 2025年12月4日 |
|
空調
|
個別 |
|---|---|
| 光ケーブル | あり |
| 警備 | 機械警備 |
| エレベーター | あり(3基) |
JMFビル江戸川橋01 現在は 4 区画 空きがございます
| 階数 | 面積 | 月額賃料(総額) (坪単価) |
共益費 (坪単価) |
入居時期 | 保証金 | 天井高 OAフロア |
償却 | お気に入り お問い合わせ |
|
|---|---|---|---|---|---|---|---|---|---|
| 5 | 144.68坪
(478.28㎡) |
相談
|
賃料に含む | 2026年2月1日 | 12ヵ月 | 2,600㎜
あり |
なし | 詳細 |
|
| 6 | 144.68坪
(478.28㎡) |
相談
|
賃料に含む | 2026年2月1日予定 | 12ヵ月 | 2,600㎜
あり |
なし | 詳細 |
|
| 7 | 144.68坪
(478.28㎡) |
相談
|
賃料に含む | 2026年2月1日 | 12ヵ月 | 2,600㎜
あり |
なし | 詳細 |
|
| 8 | 108.14坪
(357.50㎡) |
相談
|
賃料に含む | 2026年2月1日 | 12ヵ月 | 2,600㎜
あり |
なし | 詳細 |
|
おすすめエリアからオフィスを探す




お気に入り
閲覧履歴





