東洋不動産の賃貸オフィスサイト >
東京都千代田区内神田
> 笠原ビルディング
アイコン説明
|
新耐震基準のオフィス |
天井高3m以上のオフィス |
駅徒歩5分圏内のオフィス |
|
300坪以上のオフィス |
省エネ・環境配慮のオフィス |
築浅のビル |
|
高層ビル |
賃料20,000円以下ビル |
ビル一棟貸し |
|
BCP対策(非常用発電あり) |
1F限定ビル |
大規模ビル |
笠原ビルディング
エリア区分 : 神田エリア (千代田区) 情報更新日 : 2025年11月26日外観写真・アクセスマップ・建物情報
※賃料、共益費等課税対象となる金額には別途消費税が加算されます。
※万一、成約済みの場合はご了承ください。
※内容が現状と異なる場合には、現況を優先いたします。
※成約時には、法令に定める基準に従い仲介手数料を申し受けます。
笠原ビルディングの建物情報
| 物件名 | 笠原ビルディング(物件番号:013649) |
|---|---|
| 空室 | 空室 1 区画 空室情報はこちら▼ |
| 所在地 | 東京都千代田区内神田1丁目6-10 |
| 交通 |
東京メトロ丸ノ内線 / 大手町駅 徒歩約3分 JR山手線 / 神田駅 徒歩約5分 JR京浜東北線 / 神田駅 徒歩約6分 |
| 規模 | 地上13階 / 地下1階 |
| 構造 | S・SRC造 |
| 竣工年月 | 2008年1月 |
| 延床面積 | 2,031坪 / 6,715㎡ |
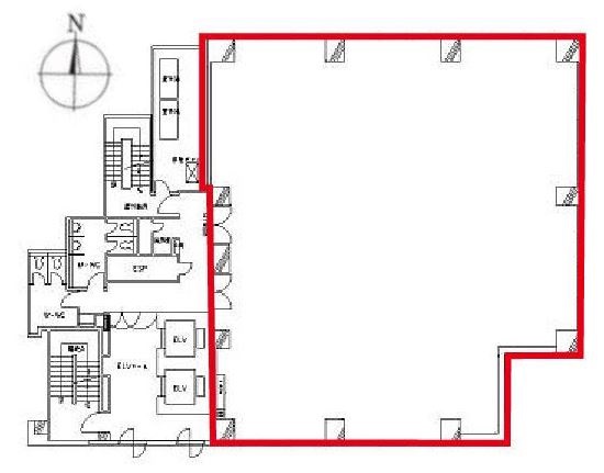
| 基準階面積 | 114坪 / 378㎡ |
| 天井高 | 2,700㎜ |
| 床荷重 | 300kg/㎡ |
| 契約形態 | 普通借家 |
|---|---|
| 更新料 | なし |
| 契約期間 | 2年 |
| 最終更新 | 2024年1月10日 |
|
空調
|
個別 |
|---|---|
| 光ケーブル | |
| 警備 | 有人+機械警備 |
| エレベーター | あり(2基) |
笠原ビルディング 現在は 1 区画 空きがございます
| 階数 | 面積 | 月額賃料(総額) (坪単価) |
共益費 (坪単価) |
入居時期 | 保証金 | 天井高 OAフロア |
償却 | お気に入り お問い合わせ |
|
|---|---|---|---|---|---|---|---|---|---|
| 4NEW | 114.35坪
(378.03㎡) |
相談
|
503,140円
(4,400円) |
2026年5月1日 | 10ヵ月 | 2,700㎜
あり |
なし | 詳細 |
|
おすすめエリアからオフィスを探す




お気に入り
閲覧履歴




