東洋不動産の賃貸オフィスサイト >
東京都品川区西五反田
> TK五反田ビル
アイコン説明
|
新耐震基準のオフィス |
天井高3m以上のオフィス |
駅徒歩5分圏内のオフィス |
|
300坪以上のオフィス |
省エネ・環境配慮のオフィス |
築浅のビル |
|
高層ビル |
賃料20,000円以下ビル |
ビル一棟貸し |
|
BCP対策(非常用発電あり) |
1F限定ビル |
大規模ビル |
TK五反田ビル
エリア区分 : 大崎・五反田・目黒エリア (品川区) 情報更新日 : 2025年11月26日外観写真・アクセスマップ・建物情報
※賃料、共益費等課税対象となる金額には別途消費税が加算されます。
※万一、成約済みの場合はご了承ください。
※内容が現状と異なる場合には、現況を優先いたします。
※成約時には、法令に定める基準に従い仲介手数料を申し受けます。
TK五反田ビルの建物情報
| 物件名 | TK五反田ビル(物件番号:013561) |
|---|---|
| 空室 | 空室 1 区画 空室情報はこちら▼ |
| 所在地 | 東京都品川区西五反田8丁目3-6 |
| 交通 |
JR山手線 / 五反田駅 徒歩約6分 都営浅草線 / 五反田駅 徒歩約6分 東急池上線 / 大崎広小路駅 徒歩約3分 |
| 規模 | 地上9階 / 地下1階 |
| 構造 | RC造 |
| 竣工年月 | 1989年6月 |
| 延床面積 | 1,569坪 / 5,188㎡ |
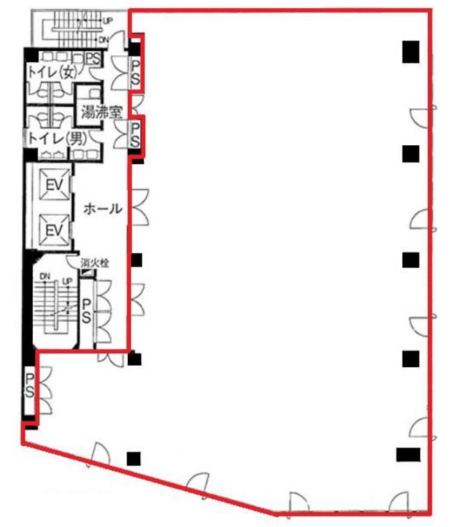
| 基準階面積 | 140坪 / 461㎡ |
| 天井高 | 2,550㎜ |
| 床荷重 | 300kg/㎡ |
| 契約形態 | |
|---|---|
| 更新料 | なし |
| 契約期間 | |
| 最終更新 | 2025年11月14日 |
|
空調
|
個別 |
|---|---|
| 光ケーブル | あり |
| 警備 | 機械警備 |
| エレベーター | あり(2基) |
TK五反田ビル 現在は 1 区画 空きがございます
| 階数 | 面積 | 月額賃料(総額) (坪単価) |
共益費 (坪単価) |
入居時期 | 保証金 | 天井高 OAフロア |
償却 | お気に入り お問い合わせ |
|
|---|---|---|---|---|---|---|---|---|---|
| 8 | 139.54坪
(461.28㎡) |
相談
|
相談 | 即日 | 12ヵ月 | 2,500㎜
あり |
なし | 詳細 |
|
おすすめエリアからオフィスを探す




お気に入り
閲覧履歴





