東洋不動産の賃貸オフィスサイト >
東京都千代田区西神田
> VORT神保町III
アイコン説明
|
新耐震基準のオフィス |
天井高3m以上のオフィス |
駅徒歩5分圏内のオフィス |
|
300坪以上のオフィス |
省エネ・環境配慮のオフィス |
築浅のビル |
|
高層ビル |
賃料20,000円以下ビル |
ビル一棟貸し |
|
BCP対策(非常用発電あり) |
1F限定ビル |
大規模ビル |
VORT神保町III
エリア区分 : 御茶の⽔・⽔道橋・神保町・飯⽥橋・九段エリア (千代田区) 情報更新日 : 2026年2月12日外観写真・アクセスマップ・建物情報
※賃料、共益費等課税対象となる金額には別途消費税が加算されます。
※万一、成約済みの場合はご了承ください。
※内容が現状と異なる場合には、現況を優先いたします。
※成約時には、法令に定める基準に従い仲介手数料を申し受けます。
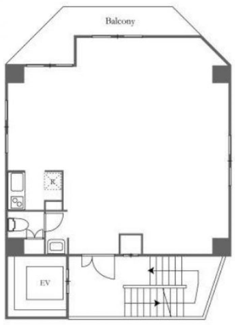
VORT神保町IIIの建物情報
| 物件名 | VORT神保町III(物件番号:012669) |
|---|---|
| 空室 | 空室 0 区画 空室情報はこちら▼ |
| 所在地 | 東京都千代田区西神田2丁目1-8 |
| 交通 |
東京メトロ半蔵門線 / 神保町駅 徒歩約5分 都営三田線 / 水道橋駅 徒歩約7分 東京メトロ半蔵門線 / 九段下駅 徒歩約8分 JR中央・総武線 / 水道橋駅 徒歩約5分 |
| 規模 | 地上12階 |
| 構造 | S造 |
| 竣工年月 | 2019年4月 |
| 延床面積 | |
| 基準階面積 | 17坪 / 55㎡ |
| 天井高 | 2,380㎜ |
| 床荷重 |
| 契約形態 | 普通借家 |
|---|---|
| 更新料 | 1ヵ月 |
| 契約期間 | 3年 |
| 最終更新 | 2026年2月12日 |
|
空調
|
個別 |
|---|---|
| 光ケーブル | |
| 警備 | セキュリティ有EV不停止 |
| エレベーター | あり(1基) |
VORT神保町III 現在は 0 区画 空きがございます
| 階数 | 面積 | 月額賃料(総額) (坪単価) |
共益費 (坪単価) |
入居時期 | 保証金 | 天井高 OAフロア |
償却 | お気に入り お問い合わせ |
|
|---|---|---|---|---|---|---|---|---|---|
| 現在、空室情報はありません。 | |||||||||
おすすめエリアからオフィスを探す




お気に入り
閲覧履歴


