東洋不動産の賃貸オフィスサイト >
東京都文京区本郷
> いちご本郷三丁目ビル(旧:JEI本郷ビル)
アイコン説明
|
新耐震基準のオフィス |
天井高3m以上のオフィス |
駅徒歩5分圏内のオフィス |
|
300坪以上のオフィス |
省エネ・環境配慮のオフィス |
築浅のビル |
|
高層ビル |
賃料20,000円以下ビル |
ビル一棟貸し |
|
BCP対策(非常用発電あり) |
1F限定ビル |
大規模ビル |
いちご本郷三丁目ビル(旧:JEI本郷ビル)
エリア区分 : 本郷・湯島・後楽園エリア (文京区) 情報更新日 : 2026年4月13日外観写真・アクセスマップ・建物情報
※賃料、共益費等課税対象となる金額には別途消費税が加算されます。
※万一、成約済みの場合はご了承ください。
※内容が現状と異なる場合には、現況を優先いたします。
※成約時には、法令に定める基準に従い仲介手数料を申し受けます。
いちご本郷三丁目ビル(旧:JEI本郷ビル)の建物情報
| 物件名 | いちご本郷三丁目ビル(旧:JEI本郷ビル)(物件番号:011455) |
|---|---|
| 空室 | 空室 6 区画 空室情報はこちら▼ |
| 所在地 | 東京都文京区本郷2丁目38-16 |
| 交通 |
都営大江戸線 / 本郷三丁目駅 徒歩約2分 東京メトロ丸ノ内線 / 本郷三丁目駅 徒歩約2分 都営大江戸線 / 春日駅 徒歩約7分 |
| 規模 | 地上8階 / 地下1階 |
| 構造 | SRC造 |
| 竣工年月 | 1991年2月 |
| 延床面積 | 1,778坪 / 5,877㎡ |
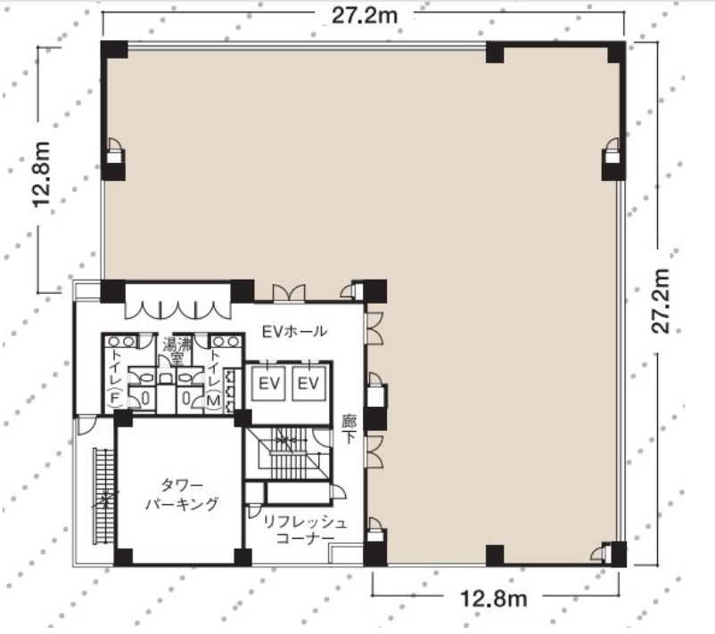
| 基準階面積 | 162坪 / 535㎡ |
| 天井高 | 2,550㎜ |
| 床荷重 |
| 契約形態 | 定期借家 |
|---|---|
| 更新料 | なし |
| 契約期間 | 相談 |
| 最終更新 | 2026年4月13日 |
|
空調
|
個別 |
|---|---|
| 光ケーブル | |
| 警備 | 機械警備 |
| エレベーター | あり(2基) |
いちご本郷三丁目ビル(旧:JEI本郷ビル) 現在は 6 区画 空きがございます
| 階数 | 面積 | 月額賃料(総額) (坪単価) |
共益費 (坪単価) |
入居時期 | 保証金 | 天井高 OAフロア |
償却 | お気に入り お問い合わせ |
|
|---|---|---|---|---|---|---|---|---|---|
| 3 | 62.93坪
(208.03㎡) |
2,076,690円
(33,000円) |
賃料に含む | 2026年7月1日 | 10ヵ月 | 2,500㎜
あり |
なし | 詳細 |
|
| 3 | 87.63坪
(289.68㎡) |
2,891,790円
(33,000円) |
賃料に含む | 2026年7月1日 | 10ヵ月 | 2,500㎜
あり |
なし | 詳細 |
|
| 3 | 42.48坪
(140.42㎡) |
1,401,840円
(33,000円) |
賃料に含む | 2026年7月1日 | 10ヵ月 | 2,500㎜
あり |
なし | 詳細 |
|
| 5 | 62.93坪
(208.03㎡) |
2,076,690円
(33,000円) |
賃料に含む | 2026年7月1日 | 10ヵ月 | 2,500㎜
あり |
なし | 詳細 |
|
| 5 | 87.63坪
(289.68㎡) |
2,891,790円
(33,000円) |
賃料に含む | 2026年7月1日 | 10ヵ月 | 2,500㎜
あり |
なし | 詳細 |
|
| 5 | 42.48坪
(140.42㎡) |
1,401,840円
(33,000円) |
賃料に含む | 2026年7月1日 | 10ヵ月 | 2,500㎜
あり |
なし | 詳細 |
|
おすすめエリアからオフィスを探す




お気に入り
閲覧履歴





