東洋不動産の賃貸オフィスサイト >
東京都千代田区神田神保町
> 東京堂神保町第3ビルディング
アイコン説明
|
新耐震基準のオフィス |
天井高3m以上のオフィス |
駅徒歩5分圏内のオフィス |
|
300坪以上のオフィス |
省エネ・環境配慮のオフィス |
築浅のビル |
|
高層ビル |
賃料20,000円以下ビル |
ビル一棟貸し |
|
BCP対策(非常用発電あり) |
1F限定ビル |
大規模ビル |
東京堂神保町第3ビルディング
エリア区分 : 御茶の⽔・⽔道橋・神保町・飯⽥橋・九段エリア (千代田区) 情報更新日 : 2024年10月9日外観写真・アクセスマップ・建物情報
※賃料、共益費等課税対象となる金額には別途消費税が加算されます。
※万一、成約済みの場合はご了承ください。
※内容が現状と異なる場合には、現況を優先いたします。
※成約時には、法令に定める基準に従い仲介手数料を申し受けます。
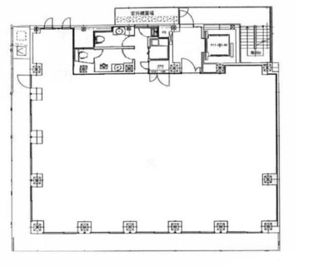
東京堂神保町第3ビルディングの建物情報
| 物件名 | 東京堂神保町第3ビルディング(物件番号:009991) |
|---|---|
| 空室 | 空室 0 区画 空室情報はこちら▼ |
| 所在地 | 東京都千代田区神田神保町1丁目1-17 |
| 交通 |
東京メトロ半蔵門線 / 神保町駅 徒歩約2分 都営三田線 / 神保町駅 徒歩約2分 都営新宿線 / 神保町駅 徒歩約2分 JR中央線(快速) / 御茶ノ水駅 徒歩約6分 JR中央・総武線 / 御茶ノ水駅 徒歩約6分 |
| 規模 | 地上8階 / 地下2階 |
| 構造 | S・一部RC造 |
| 竣工年月 | 2002年3月 |
| 延床面積 | 576坪 / 1,905㎡ |
| 基準階面積 | 57坪 / 188㎡ |
| 天井高 | 2,700㎜ |
| 床荷重 | 500kg/㎡ |
| 契約形態 | |
|---|---|
| 更新料 | |
| 契約期間 | |
| 最終更新 | 2024年10月9日 |
|
空調
|
個別 |
|---|---|
| 光ケーブル | あり |
| 警備 | 機械警備 |
| エレベーター | あり |
東京堂神保町第3ビルディング 現在は 0 区画 空きがございます
| 階数 | 面積 | 月額賃料(総額) (坪単価) |
共益費 (坪単価) |
入居時期 | 保証金 | 天井高 OAフロア |
償却 | お気に入り お問い合わせ |
|
|---|---|---|---|---|---|---|---|---|---|
| 現在、空室情報はありません。 | |||||||||
おすすめエリアからオフィスを探す




お気に入り
閲覧履歴



